关于我们
公司简介
企业文化
资质荣誉
合作伙伴
新闻资讯
产品中心
客户案例
联系我们
导航
Products
产品中心
全力打造清洁、安全、高效、节能的高品质产品
首页
产品中心
灰库设备
上一个:XXXX
返回列表
下一个:XXX
灰库设备
湿式搅拌机
产品介绍
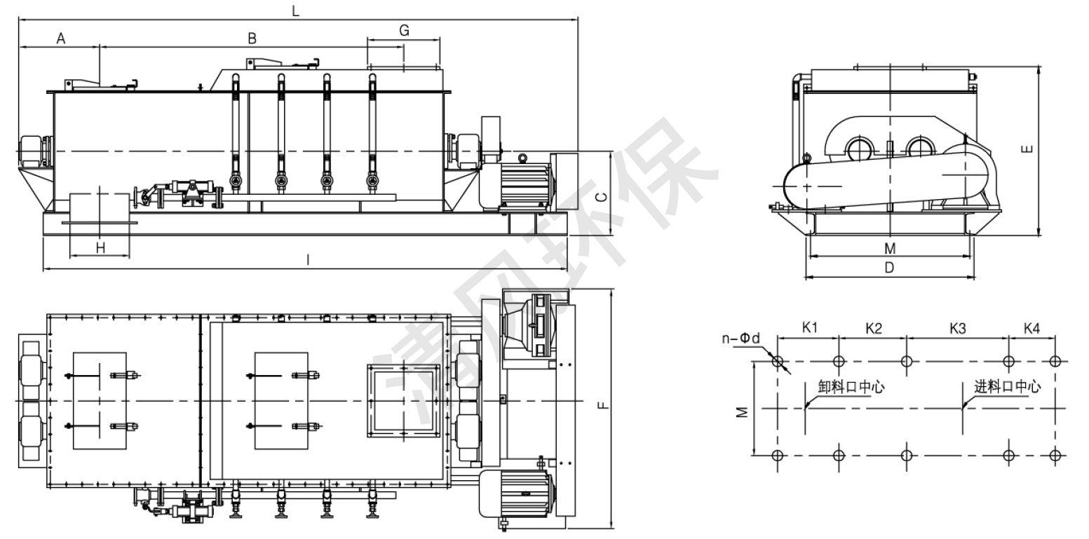
本设备为火电厂粉煤灰专用加水调湿搅拌装置,其特点:出力大,搅拌均匀,无粉尘污染,噪声小,是目前较先进的搅拌设备。
产品详情
主要技术参数
外形尺寸
外形图(mm)