Products
产品中心
全力打造清洁、安全、高效、节能的高品质产品
阀门系列
阀门系列
方形风阀
产品介绍
在选用烟气脱硫挡板门时,应注意以下事项:
1、烟气脱硫挡板门图示尺寸W和L是指挡板框架的内边尺寸,W是与挡板垂直方向的尺寸。订货时请提供烟道截面尺寸。挡板门在管道布置中应保持挡板轴在水平位置。水平布置矩形烟道高度和宽度尺寸,请分别列出。
2、烟气脱硫挡板门在选型及订货时,应提供相关数据及要求给制造厂,并从制造厂获取选型资料。根据脱硫烟气挡板门在管道中的用途及位置,选择不同的结构形式和密封形式,并提供使用工况参数:
 a、结构形式:单层挡板、双层挡板;
 b、密封形式:弹性接触密封或密封风。选择密封风时是否需要配供密封风机、空气电加热器;
 c、驱动形式:电动、气动、电液动;
 d、工作介质:烟气;
 e、工作压力(P):Pa;工作温度(t):℃
 f、材质要求:按烟气腐蚀情况,接触烟气部分材质通常分为普通碳钢、耐酸碳钢、耐腐蚀不锈钢或专用镍基合金。
 g、电器控制要求;
 h、其它特殊要求。
3、制造厂按脱硫系统设计确定的烟风管道公称通径规格制造供货。现有系列中共编制10个规格,系列外的规格可按需方要求设计订货。
4、挡板门制造厂应提供以下数据:
 a 挡板门在全闭状态下的密封效率;
 b、挡板门的驱动力矩;
 c、采用密封风系统时,挡板门所需的密封空气量及其要求。
 d、挡板门在全开状态下的阻力系数。
5、系统设计中如需设置配对法兰,订货时需明确说明由制造厂配对提供。
产品详情

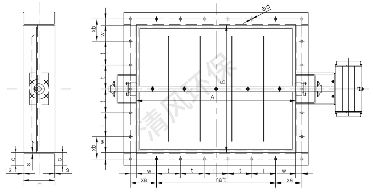
>>外形尺寸图(mm)

>>方形风阀连接尺寸表(mm)