Products
产品中心
全力打造清洁、安全、高效、节能的高品质产品
阀门系列
阀门系列
QF-D3(6、9)76H-1P风阀
产品介绍
  QF-D3(6、9)76H-1P系列风阀是本公司与有关设计院共同研制开发的新一代产品,产品的优良性能在多年的市场运作中得到充分验证,赢得了广大客户的信赖。
  它广泛应用于电力、冶金、化工、食品、制药等领域,使用于烟风道系统作截流介质之用,具有全开全闭的功能。结构设计轻巧,启闭转动灵活,驱动阻力小,严密性好,能承受风道中的工作压力和温度,通风风阀一般不用作调节介质流量与压头用。完整的通风风阀一般由风阀本体、手动装置或电动、气动执行机构组成,根据通风管道的不同可设计为:圆形、方形、矩形等多种形式的法兰连接产品。(可订购生产产品除下列表格所列外,其它产品规格为正标。另可按客户需求尺寸定做)
  风阀的门框、挡板采用钢板(不锈钢)焊接或铸造成型,均具有足够的强度与刚度,回转轴与壳体之间采用填料式密封,壳体法兰与烟道接口法兰用螺栓连接。
  风阀为门板结构,当风阀关闭时,门板与挡条密闭,以达到有效隔绝前后介质的目的。挡板的启闭由手动装置(或电动、气动执行器)通过连杆机构来执行,连杆机构为球关节,确保转动无空行程。电动或气动执行器设有开关定位连锁装置及外接行程开关,保证动作的可靠和有效预防误操作。
产品详情

>>型号代号表示方法

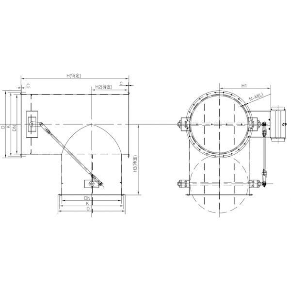
>>外形尺寸图(mm)

>>通风阀连接尺寸表(mm)