关于我们
公司简介
企业文化
资质荣誉
合作伙伴
新闻资讯
产品中心
客户案例
联系我们
导航
Products
产品中心
全力打造清洁、安全、高效、节能的高品质产品
首页
产品中心
正压浓相气力输送系统
上一个:XXXX
返回列表
下一个:XXX
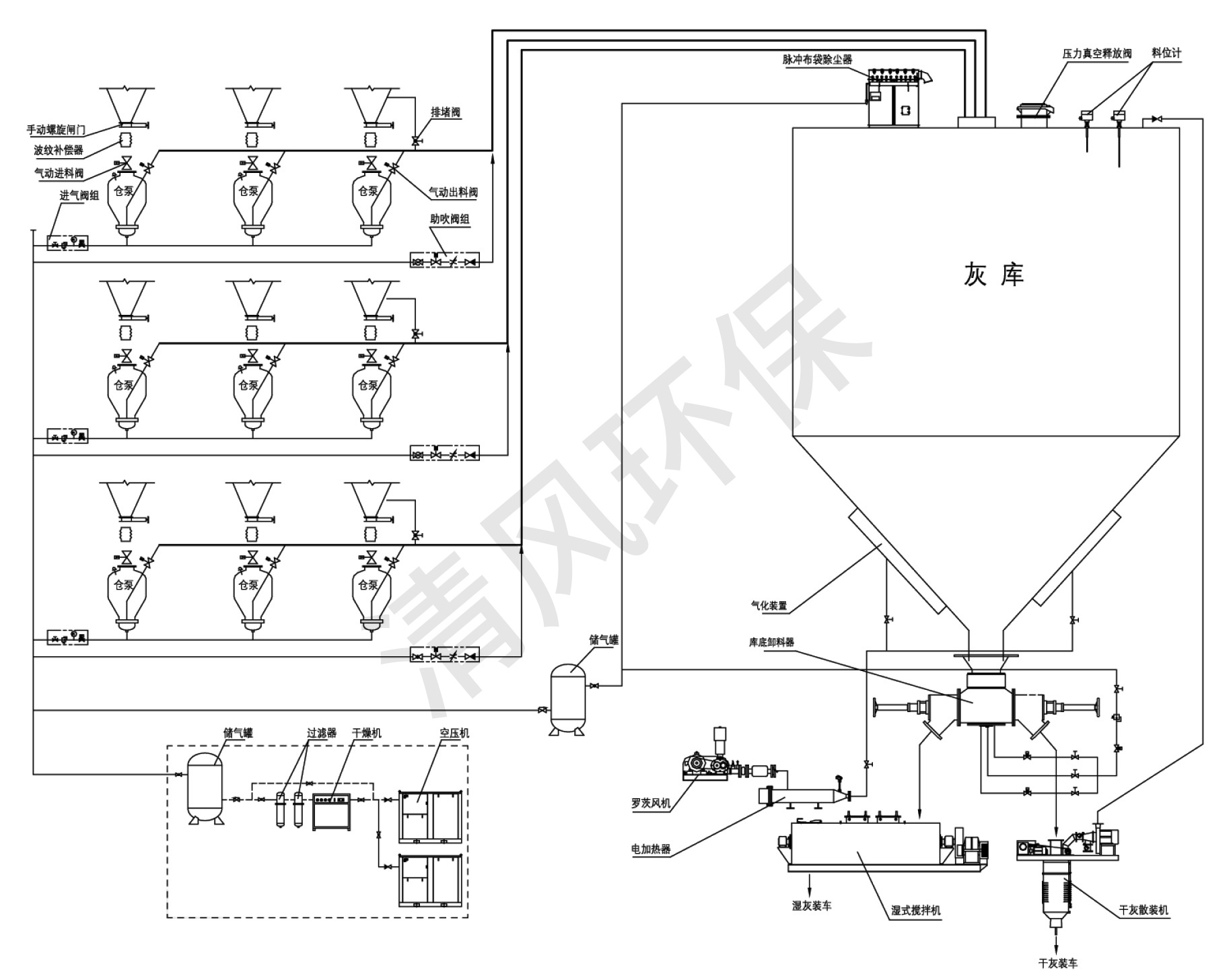
正压浓相气力输送系统
单泵制输送系统
产品介绍
本系统中,单台仓泵组成一个输送单元,由压缩空气将粉煤灰通过管道输送至灰库。该系统主要用于电除尘器灰斗。
产品详情
>>单泵制输送系统图